Kallioinen tontti ja sen vaatimukset huomioonottava suunnittelu juurruttaa tämän yksityiskohdiltaan huolellisesti mietityn ja arjen luksusta tarjoavan Passiivikivitalon sulavasti ympäristöönsä!

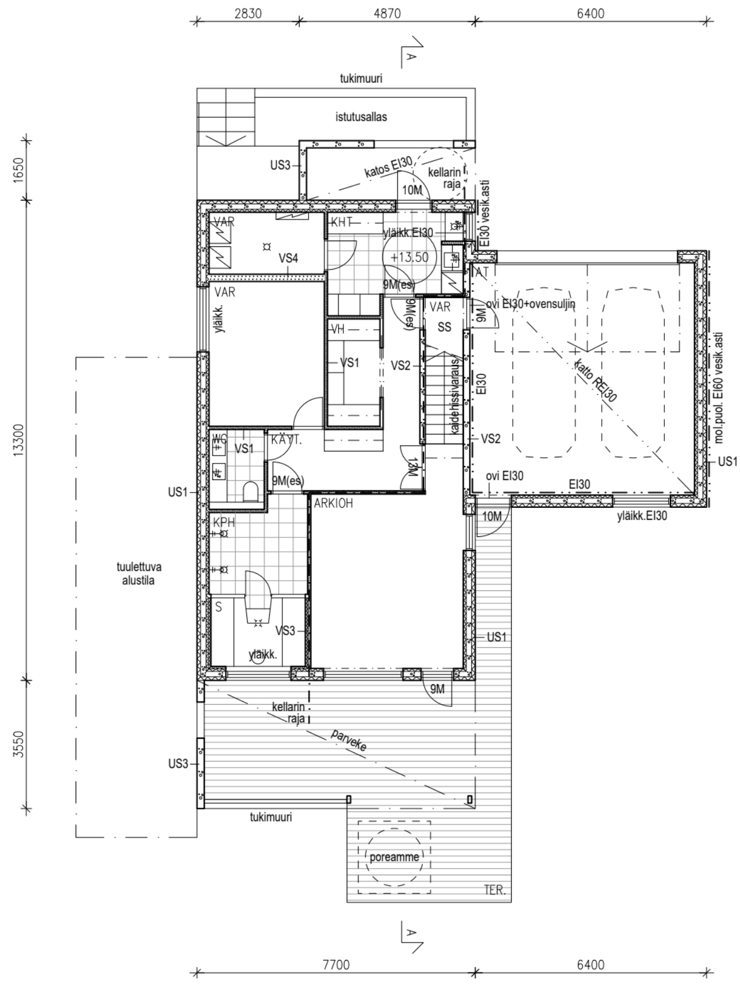
Pohjakuva 1. kerros
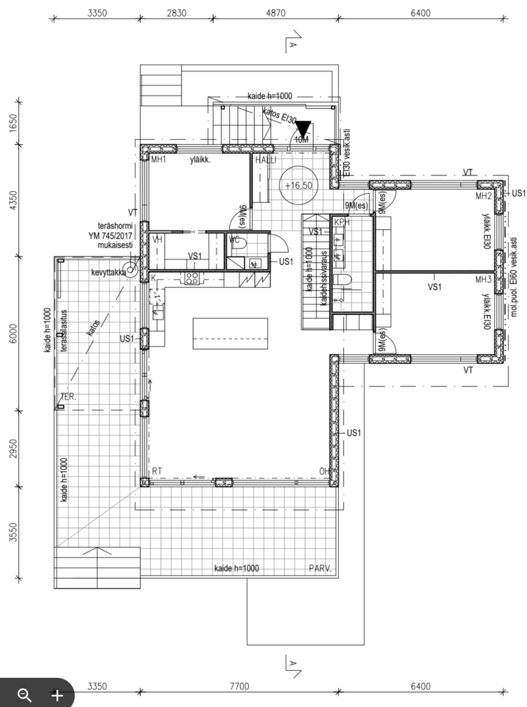
Pohjakuva 2. kerros












Pohjakuva 1. kerros
Pohjakuva 2. kerros










