Huikea tilaisuus ja rakennuslupa valmiina. Rakentamisen voit aloittaa tarpeesi mukaan vaikka heti!
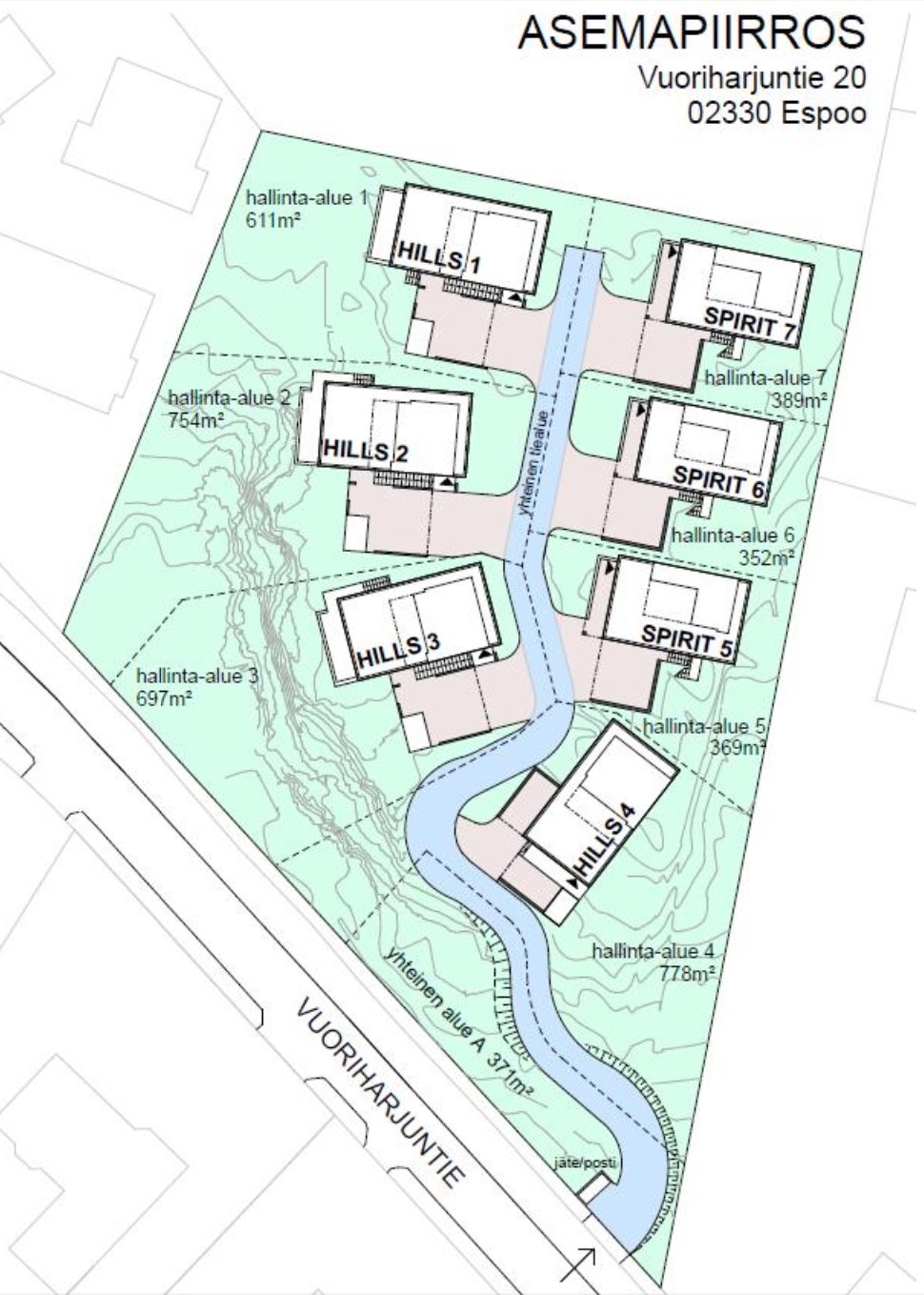
Vuoriharjuntie 20, Tillinmäki, Espoo
Hinnat alkaen (tontti, valmiit ARK-suunnitelmat ja esirakentaminen) 258 000 €
Ainutlaatuisen upea Tillinmäki Spirit Hills käsittää seitsemän modernia ja edustuksellista omakotitalohanketta ARK-rakennussuunnitelmineen ja rakennuslupineen Tillinmäen huipulle.
SAFA arkkitehti Sakari Heikkinen on suunnitellut nämä näyttävät ja korkeatasoiset kivitalot. Nämä talot edustavat tyyliä ja kestävää kehitystä. Suurista ikkunapinnoista tulvii tiloihin maksimaalisesti luonnonvaloa ja näkymät ympäröivään maisemaan yli naapuruston ovat huikeat. Isot ja aurinkoiset kattoterassit kutsuvat viihtymään.
Talojen suunnittelussa on panostettu oivaltavaan arkkitehtuuriin ja tilojen toiminallisuuteen.
Esirakentamisen sisältö:
Puiden kaato, kantojen, runkojen ja oksien poisvienti, pintamaiden poisto. Louhittavien alueiden kartoitus ja mittaus sekä maastoon merkintä, naapurikiinteistöjen katselmukset ja tärinämittareiden asennukset ja tärinöiden valvonta räjäytysten aikana. Rakennuspaikat, tiealueet sekä kanaalit louhitaan suunnitelmien mukaiseen korkoon.
Louheen irrotus, kuormaus ja poiskuljetus, soveltuvin osin louhetta käytetään tulevien tiealueiden sekä piha-alueiden tasaukseen. Jokainen rakennuspaikka louhitaan louhintasuunnitelman mukaiseen korkoon ja tasataan murskeella noin 10 - 20 cm alle tulevien anturoiden alapinnan koron, lisäksi asennetaan salaojakaivot ja -putket jotka yhdistetään valmiiksi rakennuspaikalle rakennettuun hulevesiviemäriin.
Rakennuspaikoille ja tiealueen alla sijaitseviin kanaaleihin asennetaan LVI-asemapiirroksen mukaisesti vesi-, viemäri-, ja hulevesiputket & -kaivot, pintavesikaivot, viivytyssäiliöt sekä varausputket sähkö- ja telekaapeleita varten. Jokaiselle hallinta-alueelle tulee oma veden mittaus / sopimus HSY:n kanssa.
Tie rakennetaan rakennusluvan mukaisesti kadulta ylös jokaiselle rakennuspaikalle. Tie päällystetään esirakentamisen yhteydessä 0-32 murskeella.
Esirakentamisen valvojana toimii Mikko Lehikoinen / Mesut Oy ja KVV vastaavana Heikki Laakkonen / Mittaus-Laakkonen Oy.
Vesi-, viemäri- ja hulevesiliittymien (noin 9.356eur) sekä sähköliittymän liittymismaksuista (3 x 50A noin 3.050eur) vastaa kunkin hallinta-alue tuleva haltija.
Rakennuspaikan ostaja vastaa rakennuspaikan lopullisesta tiivistämisestä ja piha-alueidensa lopullisesta rakentamisesta ja tasaamisesta haluamallaan tavalla rakennusluvan mukaisesti.
Kaikkien talojen valmistuttua tie voidaan kaikkien rakennuspaikkojen omistajien yhteisellä päätöksellä sekä kustannuksella asfaltoida sekä viimeistellä aidoin / istutuksin / kiveyksin, katso lisätiedot hallinnanjakosopimuksesta.
Esirakentaminen on aloitettu marraskuussa 2024 ja valmistuu kevään 2025 aikana..png?width=740&height=407&name=Tillinm%C3%A4ki_n%C3%A4kym%C3%A4(6).png)

.png?width=580&height=772&name=Tillinm%C3%A4ki_n%C3%A4kym%C3%A4(4).png)
.png?width=769&height=439&name=Tillinm%C3%A4ki_n%C3%A4kym%C3%A4(3).png)

Hills 1,2 ja 3 rakennuksiin on valittavissa 2 erilaista versiota huonejärjestykseen
Versio 1:


Versio 2:


Spirit 5,6 ja 7 rakennuksiin on valittavissa 2 erilaista versiota huonejärjestykseen
Versio 1:


Versio 2:


.png?width=778&height=444&name=Tillinm%C3%A4ki_n%C3%A4kym%C3%A4(3).png)
.png?width=2441&height=1157&name=Tillinm%C3%A4ki_n%C3%A4kym%C3%A4(2).png)


Hinnat sisältävät tontin, talosuunnitelmat, rakennusluvan ja esirakentamisen. Rakentamisen voit aloittaa tarpeesi mukaan vaikka heti!
Lisätiedot ja esittelyt:
Rakennuspaikkojen myynti:
Marko Hietasalo
050 624 75
marko.hietasalo@hankekehitys.com
Tatu Jokisalo
0400 735 135
