Tervetuloa erittäin upean asiakaskohteemme taloesittelyyn Näsijärven rantaan Tampereen Pohtolaan keskiviikkona 23.10.2024 klo 17-19!
Talo on arkkitehti Maija Tolmusen yksilöllisesti perheen tarpeiden mukaisesti suunnittelema erittäin upea A-energialuokan rapattu kaksikerroksinen Passiivikivitalo Näsijärven rannassa.
Aika:
Keskiviikkona 23.10.2024 klo 17-19
Paikka:
Osoite ja karttalinkki: Pohtolankatu 94, 33400 Tampere
Kohde:
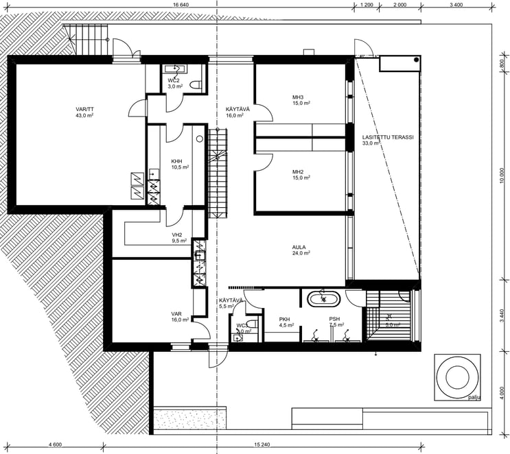
Huoneistoala: Asuinrakennus 295 h-m2
Kerrosala: Asuinrakennus 338 k-m2
Kokonaisala: Asuinrakennus 420 m2
Tilavuus: Asuinrakennus 1 750 m3
Toimituskokonaisuus:
Passiivikivitalo Materiaalipaketti
Mukana esittelyssä:
Talon isäntäperhe
Kohteen Arkkitehti Maija Tolmunen
Sisäporrastoimittaja Grado Design
Keittiö- ja kiintokaluste, sisäovi ja -katto sekä sisutusmateriaalitoimittaja Hoset

Julkisivu Länteen
Julkisivu itään

Julkisivu etelään
Julkisivu pohjoiseen
Pohjakuva kellarikerros
Pohjakuva 1. kerros
Leikkaus
