Tervetuloa kahden upean samalla tontilla sijaitsevan Passiivikivitalon taloesittelyyn Espoon Hakalehtoon keskiviikkona 9.4.2025 klo 17:00-19:00!.jpeg?width=740&height=504&name=20250326_113742%20(1).jpeg)
Nyt on kerralla paljon nähtävää, sillä esiteltävänä on kaksi upeaa, valmista ja rapattua A-energialuokan kaksikerroksista Passiivikivitaloa.
Aika:
Keskiviikkona 9.4.2025. klo 17:00-19:00
Paikka:
Osoite ja karttalinkki: Hakamäentie 13, 02120 Espoo
Kohde:
Huoneistoala: Talo A 191 m2 ja talo B 205 m2
Kerrosala: Talo A 234 m2 ja Talo B 233 m2
Kokonaisala: Talo A 234 m2 ja Talo B 266 m2
Tilavuus: Talo A 820 m3 ja Talo B 930 m3
Tontin koko: 2 832 m2
Toimituskokonaisuus:
Passiivikivitalo Materiaalipaketti
Mukana esittelyssä:
Talojen isäntäperheet
Ikkuna- ja ovitoimittaja Skaala
Sisustussuunnittelu ja -materiaalitoimittaja Sisustussuunnittelija Tiina Vuorio, Franssila
Porrastoimittaja Grado
Keittiö- ja kiintokalustetoimittaja Aran Cucine
Muotoilutoimisto (Talo A kalustesuunnittelu) Oranen & Turklin
Julkisivu lounaaseen Talo A
Julkisivu kaakkoon Talo A
Julkisivu luoteeseen Talo A
Julkisivu kaakkoon Talo A
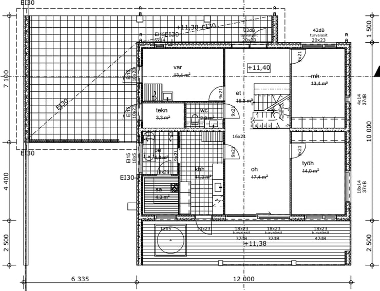
Pohjakuva 1. krs Talo A
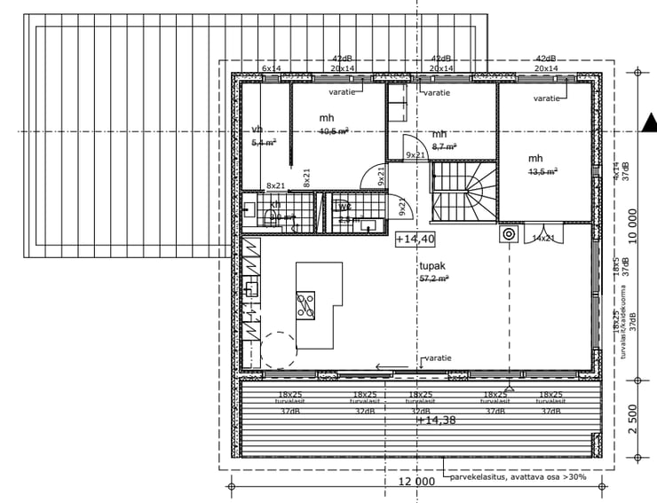
Pohjakuva 2.krs Talo A
Julkisivu lounaaseen Talo B
Julkisivu kaakkoon Talo B
Julkisivu luoteeseen Talo B
Julkisivu kaakkoon Talo B
Leikkaus Talot A ja B

