Tervetuloa upean asiakaskohteemme taloesittelyyn Niemen kaupunginosaan Tampereelle keskiviikkona 21.1.2026 klo 17-19!
Talo on yksilöllisesti perheen tarpeiden mukaisesti suunniteltu A-energialuokan rapattu kaksikerroksinen Passiivikivitalo.
Aika:
Keskiviikkona 21.1.2026 klo 17-19
Paikka:
Osoite ja karttalinkki: Tapulinkatu 42 a, 33400 Tampere
Kohde:
Huoneistoala: Asuinrakennus 140 m2
Kerrosala: Asuinrakennus 172 m2
Kokonaisala: Asuinrakennus 209 m2
Tilavuus: Asuinrakennus 749 m3
Tontin pinta-ala: 1 144 m2
Toimituskokonaisuus:
Passiivikivitalo Materiaalipaketti
Mukana esittelyssä:
Talon isäntäperhe
Talon ARK-rakennussuunnittelija Ari-Matti Sairio, Passiivikivitalot Nordic Oy
Keittiö- ja kiintokalustetoimittaja Noblessa Pirkkala
Ikkuna- ja ovitoimittaja Skaala
Julkisivu pohjoiseen
Julkisivu etelään
Julkisivu länteen
Julkisivu itään
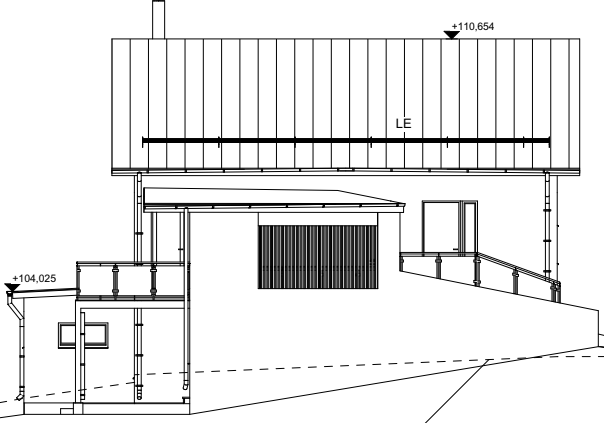
Leikkaus
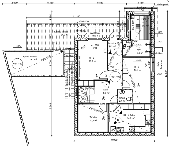
Pohjakuva kellarikerros
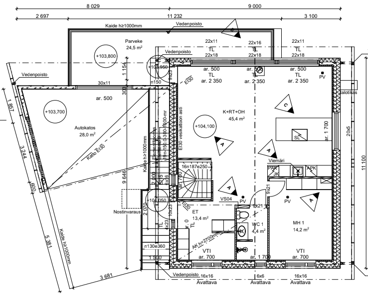
Pohjakuva 1. kerros
