Tervetuloa tyylikkään persoonallisen Passiivikivitalon taloesittelyyn Kangasalan Ilkkoon keskiviikkona 8.10.2025 klo 17-19!
Talo on arkkitehti Maija Tolmusen yksilöllisesti perheen tarpeiden mukaisesti suunnittelema A-energialuokan rapattu kaksikerroksinen Passiivikivitalo.
Aika:
Keskiviikkona 8.10.2025 klo 17-19
Paikka:
Osoite ja karttalinkki: Ilkontie 22, 36220 Kangasala
Kohde:
Huoneistoala: Asuinrakennus 140 m2
Kerrosala: Asuinrakennus 175 m2
Kokonaisala: Asuinrakennus 204 m2
Tilavuus: Asuinrakennus 720 m3
Tontin pinta-ala: 630 m2
Toimituskokonaisuus:
Passiivikivitalo Materiaalipaketti
Mukana esittelyssä:
Talon isäntäperhe
Talon Arkkitehti Maija Tolmunen
Keittiö- ja kiintokalustetoimittaja Noblessa Tampere
Ikkuna- ja ovitoimittaja Skaala
Julkisivu etelään
Julkisivu pohjoiseen
Julkisivu länteen
Julkisivu itään
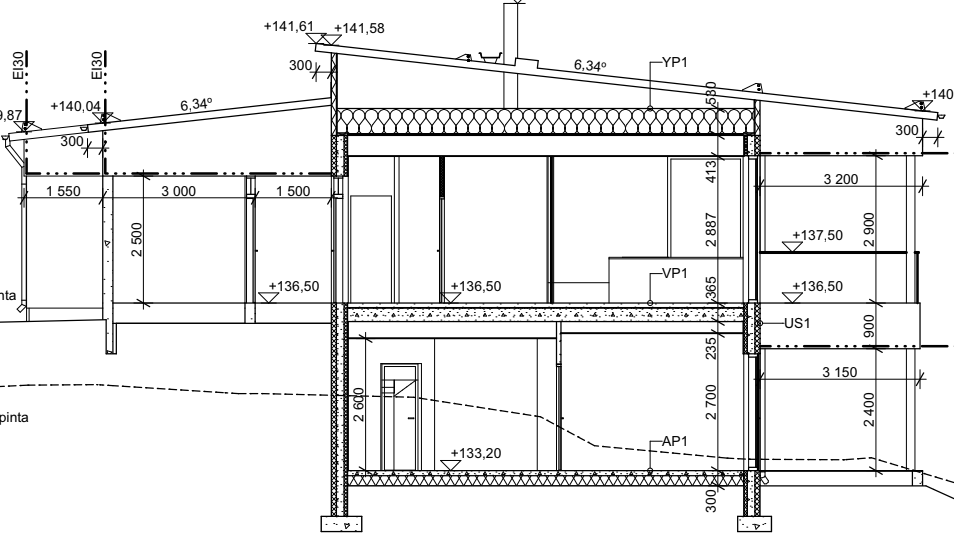
Leikkaus
