Tervetuloa upean asiakaskohteemme taloesittelyyn Helsinkiin Heikinlaaksoon keskiviikkona 4.3.2026 klo 18:00-20:00!
Esiteltävänä oleva talo on yksilöllisesti perheen tarpeiden mukaisesti suunniteltu kaksikerroksinen A-energialuokan Passiivikivitalo.
Aika:
Keskiviikkona 4.3.2026 klo 18:00-20:00
Paikka:
Osoite ja karttalinkki: Törmätie 7, 00760 Helsinki
Kohde:
Huoneistoala: 119 m2
Kerrosala: 151 m2
Kokonaisala: 151 m2
Tilavuus: 550 m3
Tontin koko: 580 m2
Toimituskokonaisuus:
Passiivikivitalo Materiaalipaketti
Mukana esittelyssä:
Talon isäntäperhe
Ikkuna- ja ovitoimittaja Skaala
Sisutuspaneelitoimittaja CEWOOD

Julkisivut etelään
Julkisivut pohjoiseen

Julkisivu länteen

Julkisivu itään
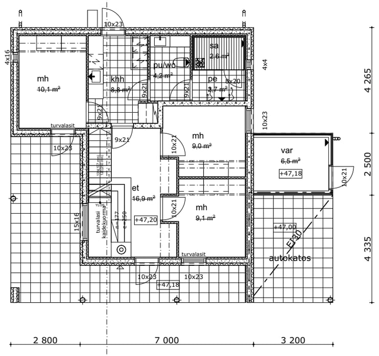
Pohjakuva 1. kerros
Pohjakuva 2. kerros

