Tervetuloa myynnissä olevan kolmekerroksisen asiakaskohteemme taloesittelyyn Pirkkalan Kurikkaan keskiviikkona 25.6.2025 klo 17-19!
Talo on yksilöllisesti perheen tarpeiden mukaisesti suunniteltu A-energialuokan rapattu kolmekerroksinen Passiivikivitalo.
Aika:
Keskiviikkona 25.6.2025 klo 17-19
Paikka:
Osoite ja karttalinkki: Huhtakannontie 15, 33960 Pirkkala
Kohde:
Huoneistoala: Asuinrakennus 108 m2
Kerrosala: Asuinrakennus 131 m2
Kokonaisala: Asuinrakennus 216 m2
Tilavuus: Asuinrakennus 770 m3
Tontin pinta-ala: 620 m2
Toimituskokonaisuus:
Passiivikivitalo Materiaalipaketti
Mukana esittelyssä:
Talon isäntäperhe
Passiivikivitaloasiantuntijat
GLIK asuntomyyjä
Julkisivu etelään
Julkisivu itään
Julkisivu pohjoiseen
Julkisivu länteen
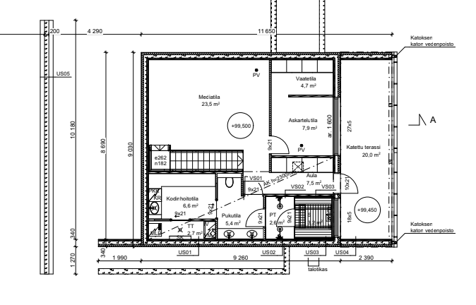
Pohjakuva kellarikerros
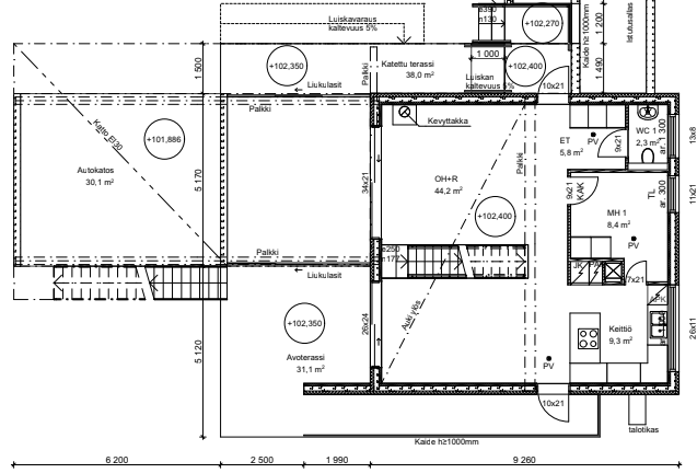
Pohjakuva 1. kerros
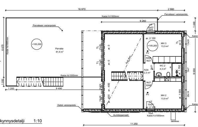
Pohjakuva 2.kerros
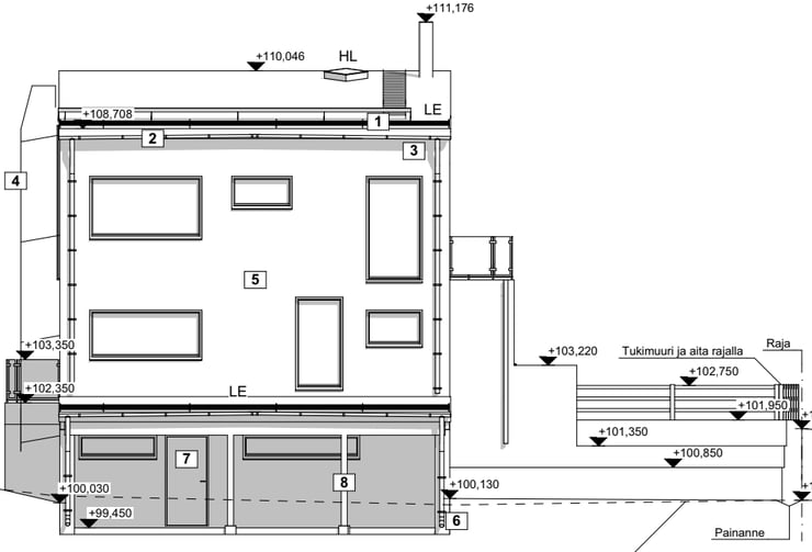
Leikkaus
