Tervetuloa upean asiakaskohteemme taloesittelyyn Espoon Kallvikiin tiistaina 27.1.2026 klo 18:00-20:00!
Esiteltävänä oleva talo on yksilöllisesti perheen tarpeiden mukaisesti suunniteltu kolmikerroksinen A-energialuokan Passiivikivitalo.
Aika:
Tiistaina 27.1.2026 klo 18:00-20:00
Paikka:
Osoite ja karttalinkki: Mustanlahdentie 8 B 2, 02780 Espoo
Kohde:
Huoneistoala: 198 m2
Kerrosala: 237 m2
Kokonaisala: 237 m2
Tilavuus: 850 m3
Tontin koko: 753 m2
Toimituskokonaisuus:
Passiivikivitalo Materiaalipaketti
Mukana esittelyssä:
Talon isäntäperhe
Kohteen arkkitehti Riinamari Välikangas ja Virve Rosberg Studio Rosberg
Keittiö- ja kiintokalustetoimittaja Novart
Porrastoimittaja Hoviportaat
Terassilasitustoimittaja Suomen Terassilasitus
Projektinjohtotoimisto Mesut
Sisätyöurakoitsija Conref

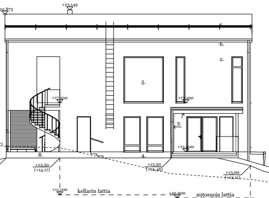
Julkisivut itään
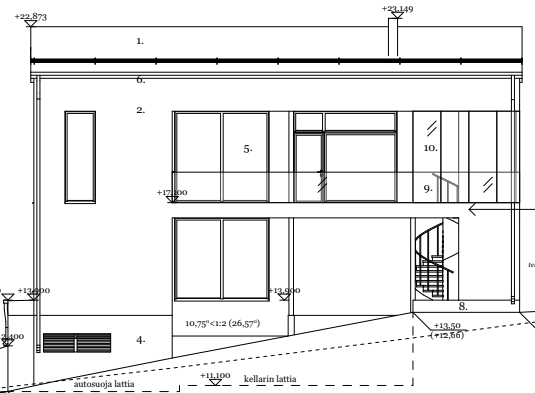
Julkisivut länteen
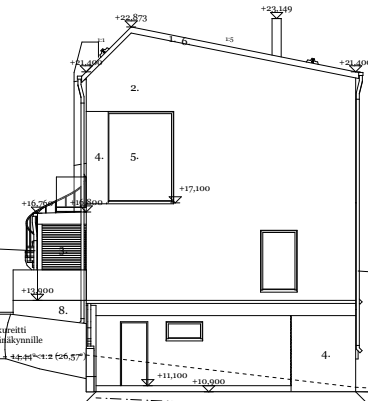
Julkisivu pohjoiseen
Julkisivu etelään
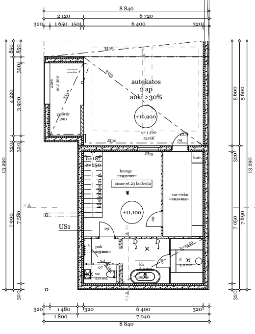
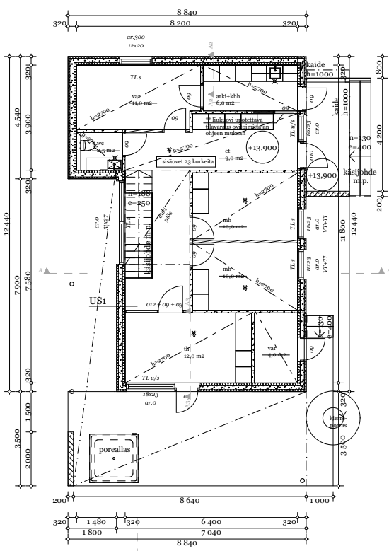
Pohjakuva kellarikerros
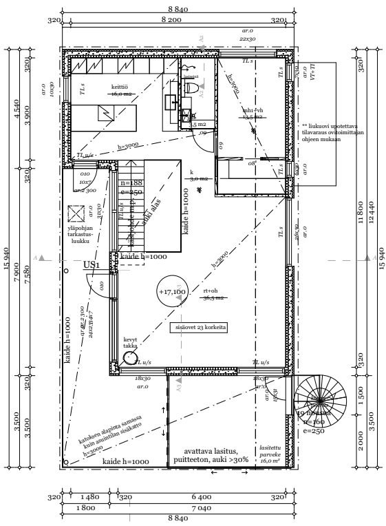
Pohjakuva 1. kerros
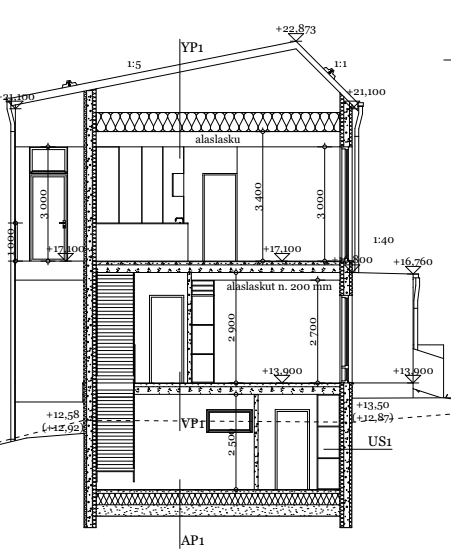
Pohjakuva 2. kerros

