Tervetuloa upean Passiivikivitalon taloesittelyyn Veikkolaan Kirkkonummelle keskiviikkona 29.10.2025 klo 17:00-19:00!.jpeg?width=740&height=435&name=20250807_120702%20(1).jpeg)
Esiteltävänä oleva talo on valmis yksilöllisesti perheen tarpeiden mukaisesti suunniteltu kaksikerroksinen A-energialuokan Passiivikivitalo.
Aika:
Keskiviikkona 29.10.2025. klo 17:00-19:00
Paikka:
Osoite ja karttalinkki: Kiislakuja 9, 02880 Kirkkonummi
Kohde:
Kerrosala: Yhteensä 189 m2 (autotalli 37 m2)
Kokonaisala: 270 m2
Tilavuus: 830 m3
Tontin koko: 946 m2
Toimituskokonaisuus:
Passiivikivitalo Materiaalipaketti
Mukana esittelyssä:
Isäntäperhe
Valaisintoimittaja Led Store
Sisätyöurakoitsija Daran
Havainnekuva

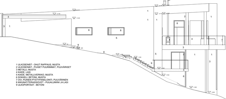
Julkisivu itään
Julkisivu länteen
Julkisivu etelään
Julkisivu pohjoiseen
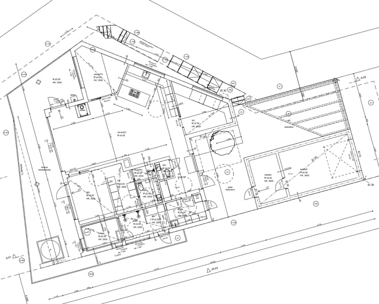
Pohjakuva kellarikerros
Pohjakuva 1. kerros
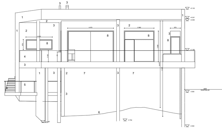
Leikkaus

