Tervetuloa Passiivikivitalot taloesittelyyn Espoon Kurttilaan 5.9.2024 klo 17-19!
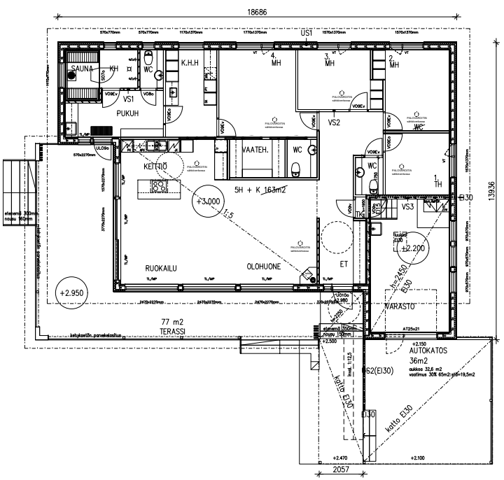
Esiteltävänä oleva talo on yksilöllisesti perheen tarpeiden mukaisesti suunniteltu valmis A-energialuokan rapattu yksitasoinen Passiivikivitalo.
Aika:
Torstaina 5.9.2024 klo 17-19
Paikka:
Osoite ja karttalinkki: Lamppukuja 5, 02780 Espoo
Kohde:
Kerrosala: 186 k-m2
Kokonaisala: 298 k-m2
Tilavuus: 759 m3
Tontin koko: 1 990 m2
Toimituskokonaisuus:
Passiivikivitalo Materiaalipaketti
Mukana esittelyssä:
Talon isäntäperhe
kohteen urakoitsija A-A Rakennus
Keittiö- ja kiintokalustetoimittaja Novart
LVI-toimittaja RH Kylmätekniikka




Pohjapiirustus

