Tervetuloa Passiivikivitalot taloesittelyyn Espoon Suurpeltoon 29.5.2024 klo 17-19!
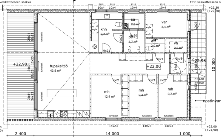
Esiteltävänä oleva talo on yksilöllisesti perheen tarpeiden mukaisesti suunniteltu valmis A-energialuokan rapattu yksitasoinen Passiivikivitalo.
Aika:
Keskiviikkona 29.5.2024 klo 17-19
Paikka:
Osoite ja karttalinkki: Väli-Henttaan tie 16, 02250 Espoo
Kohde:
Kerrosala: 140 k-m2
Kokonaisala: 140 k-m2
Tilavuus: 530 m3
Tontin koko: 2 967 m2
Toimituskokonaisuus:
Passiivikivitalo Materiaalipaketti
Mukana esittelyssä:
Talon isäntäperhe / kohteen urakoitsija 21 Works
Ikkuna- ja ovitoimittaja Skaala
Keittiö- ja kiintokalustetoimittaja Noblessa




Pohjapiirustus
Leikkaus

