Tervetuloa Passiivikivitalot taloesittelyyn Lahden Järventaustaan 19.9.2023 klo 17:00-19:00!
Esiteltävänä oleva talo on yksilöllisesti perheen tarpeiden mukaisesti suunniteltu valmis A-energialuokan rapattu kaksikerroksinen Passiivikivitalo.
Aika:
Tiistaina 19.9.2023 klo 17:00-19:00
Paikka:
Osoite ja karttalinkki: Tappurakatu 3, 15230 Lahti (Tappuratielle käännytään Kytölän Selkätie 132 kohdalta)
Kohde:
Huoneistoala: 167 k-m2
Kerrosala: 259 k-m2
Tilavuus: 924 m3
Tontin koko: 897 m2
Toimituskokonaisuus:
Passiivikivitalo Materiaalipaketti
Mukana esittelyssä:
Talon isäntäperhe
Ikkuna- ja ovitoimittaja Skaala
Julkisivu länteen
Julkisivu itään
Julkisivu pohjoiseen
Julkisivu pohjoiseen
Leikkauskuva
Pohjakuva 1. krs
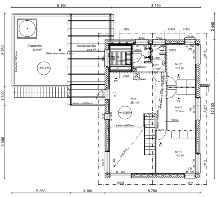
Pohjakuva 2. krs
