Tervetuloa Passiivikivitalot taloesittelyyn Sipoon Tuulenpesään 26.10.2022 klo 17-19!
Talo on yksilöllisesti perheen tarpeiden mukaisesti suunniteltu valmis rapattu kaksikerroksinen Passiivikivitalo.
Aika:
Keskiviikko 26.10.2022 klo 17-19
Paikka:
Osoite ja karttalinkki: Örnvikintie 11, 00890 Sipoo
Kohde:
Huoneistoala asuinrakennus 202 h-m2
Kerrosala asuinrakennus: 233 k-m2
Kerrosala autokatos ja -talli: 48 k-m2
Tilavuus: 1 010 m3
Toimituskokonaisuus:
Passiivikivitalo Materiaalipaketti
Mukana esittelyssä:
Talon isäntäperhe
Asennusurakoitsija
Arkkitehtuuritoimisto Studio Rosberg
Laattatoimittaja Caisla Oy
Valaistussuunnittelu ja valaisintoimittaja Led Store Oy

Julkisivu koilliseen
Julkisivu lounaaseen
Julkisivu luoteeseen
Julkisivu kaakkoon
Leikkaus
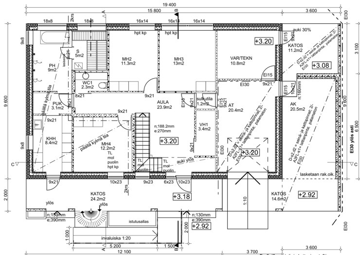
Pohjakuva 1.krs
Pohjakuva 2. krs.

